Quadrilocale in vendita

Malalbergo, Via Galileo Galilei - Altedo
€ 159.000
4 locali 4 locali
101 Mq 101 Mq
1 bagno 1 bagno

Quadrilocale in vendita

Malalbergo, Via Galileo Galilei - Altedo

Descrizione annuncio

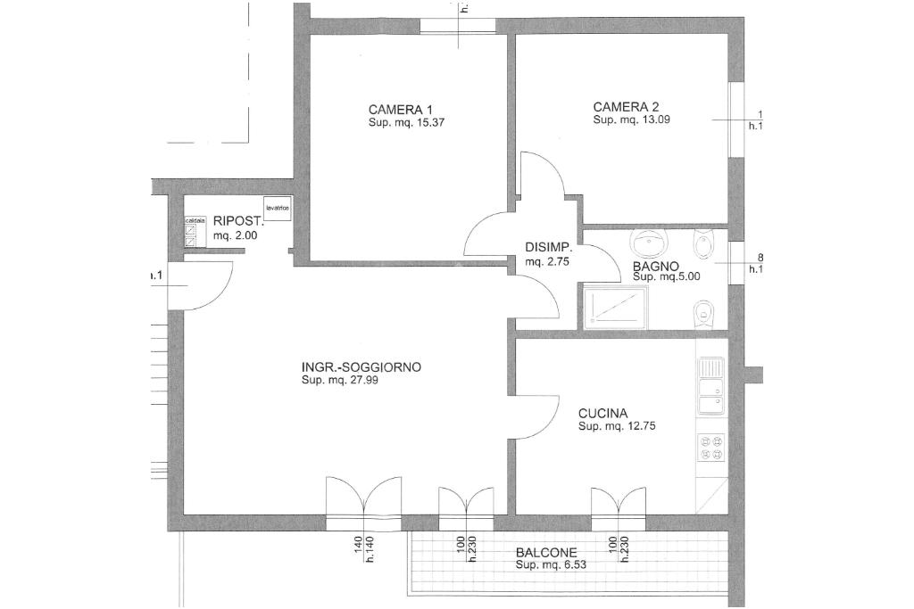
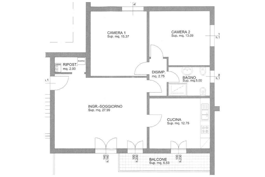
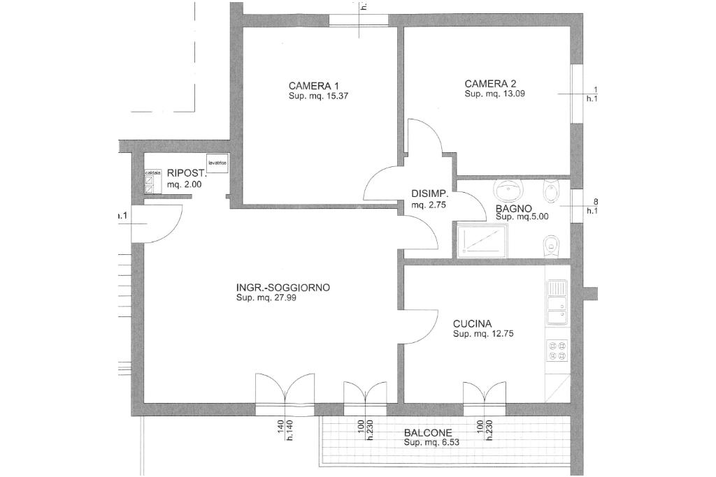
ALTEDO: Nel comune di Malalbergo, nella località di Altedo, è disponibile un appartamento in vendita situato al primo piano di un condominio.

L'immobile offre spazi ben distribuiti e funzionali. L'ingresso si apre su un luminoso soggiorno, ideale per momenti di relax e convivialità. La cucina abitabile è perfetta per chi ama cucinare e condividere pasti in famiglia. L'appartamento dispone di due camere da letto (matrimoniale e doppia), garantendo comfort e privacy ed un bagno finestrato con doccia. Un balcone offre uno spazio esterno per godere di momenti all'aria aperta. Completano la proprietà una cantina, utile per riporre oggetti e attrezzature.

L'immobile è dotato di aria condizionata, il riscaldamento autonomo con caldaia individuale e si trova in una zona residenziale tranquilla, ideale per chi cerca serenità.

Libero subito, rappresenta un'ottima opportunità per chi desidera stabilirsi in un contesto accogliente.

Per ricevere maggiori informazioni contattare il numero 051.66.01.042 oppure scrivere a bohb4.

Mostra tutto

Nelle vicinanze

Trasporto pubblico Trasporto pubblico
Altedo Galilei
Altedo Galilei
80 m
Altedo Ausl
Altedo Ausl
250 m
Ricariche auto elettriche Ricariche auto elettriche
EnelX EVAD COOP Altedo
220 m
Altedo XXV Aprile | EnelX
450 m
Pegola | EnelX
2,5 Km
Farmacia Farmacia
Farmacia Comunale
450 m
Supermercati Supermercati
Tuodì
120 m
Coop Altedo
270 m
Bar Bar
Bar Sport
280 m
La Dolce Vita
430 m
Bar
570 m
Ristoranti Ristoranti
La Giara
790 m
Ristoranti
2,3 Km
Mostra tutto

Caratteristiche

Rif.:
61150300
Piano:
1 di 2 (Piano basso)
Balconi:
1
Camere da letto:
2
Arredamento:
Assente
Condizionamento:
Autonomo
Mostra tutto
Prezzo Prezzo
€ 159.000
Rata mutuo Rata mutuo
€ 751 / mese
Spese annue Spese annue
€ 550
Proponi il tuo prezzoProponi il tuo prezzo

Classe Energetica

G
G
G
G
G
G
G
G
G
EP invernale del fabbricato:
EP estiva del fabbricato:
Anno di costruzione:
1983
Riscaldamento:
Autonomo
Tipo impianto:
A radiatori
Tipo alimentazione:
Metano

Ti interessa visionare l'immobile?

Fissa un appuntamento  Fissa un appuntamento

Richiedi informazioni

Clicca su Leggi per aprire l'informativa
* Questi campi sono obbligatori

Calcola il tuo mutuo

Semplice e senza impegno
Anticipo

( % )
Mutuo

( % )

pochi semplici passi

inserisci i tuoi dati
Questionario completato
Grazie per aver richiesto un appuntamento senza impegno con un nostro Consulente del Credito e Assicurativo.

Hai inserito correttamente tutti i dati necessari e a breve riceverai una e-mail con un link da convalidare per inviare i tuoi dati.
Affiliato
Le Case Di Bologna Spa
Via Nazionale, 82/A 40051 Malalbergo (BO)

Il nostro staff


  • Nicolò Barbirati
    Affiliato

  • Andrea Gotti
    Affiliato

  • Roberta Tasca
    Coordinatrice
Via Nazionale, 82/A 40051 Malalbergo (BO)
Zona: Malalbergo-Altedo-Frazioni di Baricella-Pegola
Mostra su mappa
Orari: dal lunedì al venerdì dalle h. 09.00 alle h. 13.00 e dalle h. 15.00 alle h. 20.00. Il sabato su appuntamento.
Affiliato
Le Case Di Bologna Spa
Via Nazionale, 82/A 40051 Malalbergo (BO)

2025 Tecnocasa Franchising S.p.A. - P. IVA 08365160152 - Via Monte Bianco 60/A 20089 Rozzano (MI). Ogni agenzia ha un proprio titolare ed è autonoma. Privacy policy | Policy utilizzo | Cookie policy