Bilocale in vendita

Malalbergo, Via Marino Ortolani - Altedo
€ 139.000
2 locali 2 locali
64 Mq 64 Mq
1 bagno 1 bagno

Bilocale in vendita

Malalbergo, Via Marino Ortolani - Altedo

Descrizione annuncio

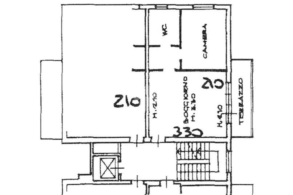
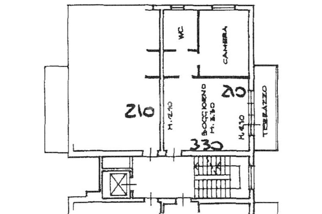
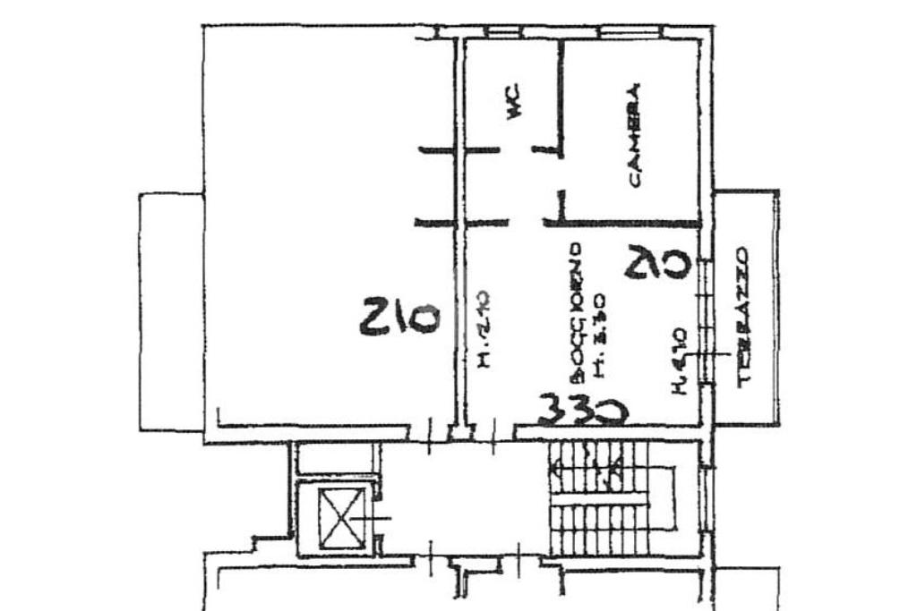
Altedo: Bilocale situato al primo piano di un condominio dotato di ascensore. L'appartamento offre un ambiente luminoso e spazioso, ideale per chi cerca una soluzione abitativa comoda e funzionale. La posizione centrale garantisce un facile accesso a tutti i servizi essenziali.

L'immobile è composto da soggiorno con angolo cottura, disimpegno, bagno finestrato, un'ampia camera da letto matrimoniale e un balcone che aggiunge un tocco di vivibilità all'insieme. Il riscaldamento autonomo assicura un controllo ottimale dei consumi energetici. Completano la proprietà un box auto e una cantina, offrendo ulteriore spazio per le varie esigenze. Le inferiate presenti garantiscono un livello aggiuntivo di sicurezza. Questa soluzione rappresenta un'opportunità interessante per chi desidera vivere in una zona ben servita, senza rinunciare alla tranquillità e al comfort.

Per ricevere maggiori informazioni o fissare una visita contattare il numero 051.6601042 o 344.2413132

Mostra tutto

Nelle vicinanze

Trasporto pubblico Trasporto pubblico
Altedo
Altedo
310 m
Altedo Chiesa
Altedo Chiesa
420 m
Ricariche auto elettriche Ricariche auto elettriche
Altedo XXV Aprile | EnelX
230 m
EnelX EVAD COOP Altedo
680 m
Farmacia Farmacia
Farmacia Comunale
350 m
Supermercati Supermercati
Tuodì
610 m
Coop Altedo
680 m
Bar Bar
Bar
330 m
La Dolce Vita
370 m
Bar Sport
410 m
Ristoranti Ristoranti
La Giara
440 m
Ristoranti
2,4 Km
Mostra tutto

Caratteristiche

Rif.:
61189400
Piano:
1 di 4 con ascensore (Piano basso)
Box:
1
Balconi:
1
Camere da letto:
1
Condizionamento:
Autonomo
Mostra tutto
Prezzo Prezzo
€ 139.000
Rata mutuo Rata mutuo
€ 655 / mese
Spese annue Spese annue
€ 650
Proponi il tuo prezzoProponi il tuo prezzo
Immobile valutato con T·Valuta

Classe Energetica

G
G
G
G
G
G
G
G
G
Anno di costruzione:
1994
Riscaldamento:
Autonomo
Tipo impianto:
A radiatori
Tipo alimentazione:
Metano

Ti interessa visionare l'immobile?

Fissa un appuntamento  Fissa un appuntamento

Richiedi informazioni

Clicca su Leggi per aprire l'informativa
* Questi campi sono obbligatori

Calcola il tuo mutuo

Semplice e senza impegno
Anticipo

( % )
Mutuo

( % )

pochi semplici passi

inserisci i tuoi dati
Questionario completato
Grazie per aver richiesto un appuntamento senza impegno con un nostro Consulente del Credito e Assicurativo.

Hai inserito correttamente tutti i dati necessari e a breve riceverai una e-mail con un link da convalidare per inviare i tuoi dati.
Affiliato
Le Case Di Bologna Spa
Via Nazionale, 82/A 40051 Malalbergo (BO)

Il nostro staff


  • Nicolò Barbirati
    Affiliato

  • Andrea Gotti
    Affiliato

  • Roberta Tasca
    Coordinatrice
Via Nazionale, 82/A 40051 Malalbergo (BO)
Zona: Malalbergo-Altedo-Frazioni di Baricella-Pegola
Mostra su mappa
Orari: dal lunedì al venerdì dalle h. 09.00 alle h. 13.00 e dalle h. 15.00 alle h. 20.00. Il sabato su appuntamento.
Affiliato
Le Case Di Bologna Spa
Via Nazionale, 82/A 40051 Malalbergo (BO)

2026 Tecnocasa Franchising S.p.A. - P. IVA 08365160152 - Via Monte Bianco 60/A 20089 Rozzano (MI). Ogni agenzia ha un proprio titolare ed è autonoma. Privacy policy | Policy utilizzo | Cookie policy