Porzione di bifamiliare in vendita

Malalbergo, Via Dei Fumanti - Altedo
€ 350.000
4 locali 4 locali
120 Mq 120 Mq
2 bagni 2 bagni

Porzione di bifamiliare in vendita

Malalbergo, Via Dei Fumanti - Altedo

Descrizione annuncio

MALALBERGO NUOVA COSTRUZIONE: PORZIONE DI BIFAMILIARE IN VENDITA AD ALTEDO. Il 'BORGO DEI FUMANTI' nasce sull'ultimo lotto edificabile di Thedus, verde e riservata zona residenziale di recente realizzazione, compresa tra la via Nazionale SS64 e la circonvallazione che porta all'autostrada (A13) con ingresso/uscita dedicata. Gode di una posizione strategica con facile accesso ai principali servizi come bar, tabacchi, banche, poste, uffici comunali, supermercati e negozi di alimentari, farmacie e scuole. Sono inoltre presenti numerose fermate dell'autobus di linea 356 (Tper) che ti collegherà a Bologna e Ferrara in circa 30 minuti, senza bisogno di utilizzare il tuo mezzo personale! E' ben provvisto anche di servizi secondari, ma comunque fondamentali per lo svago ed il tempo libero come ristoranti, parchi, centro sportivo e biblioteche. Situata in una zona strategica, combina design contemporaneo e tecnologie di ultima generazione, garantendo comfort ed efficienza energetica.

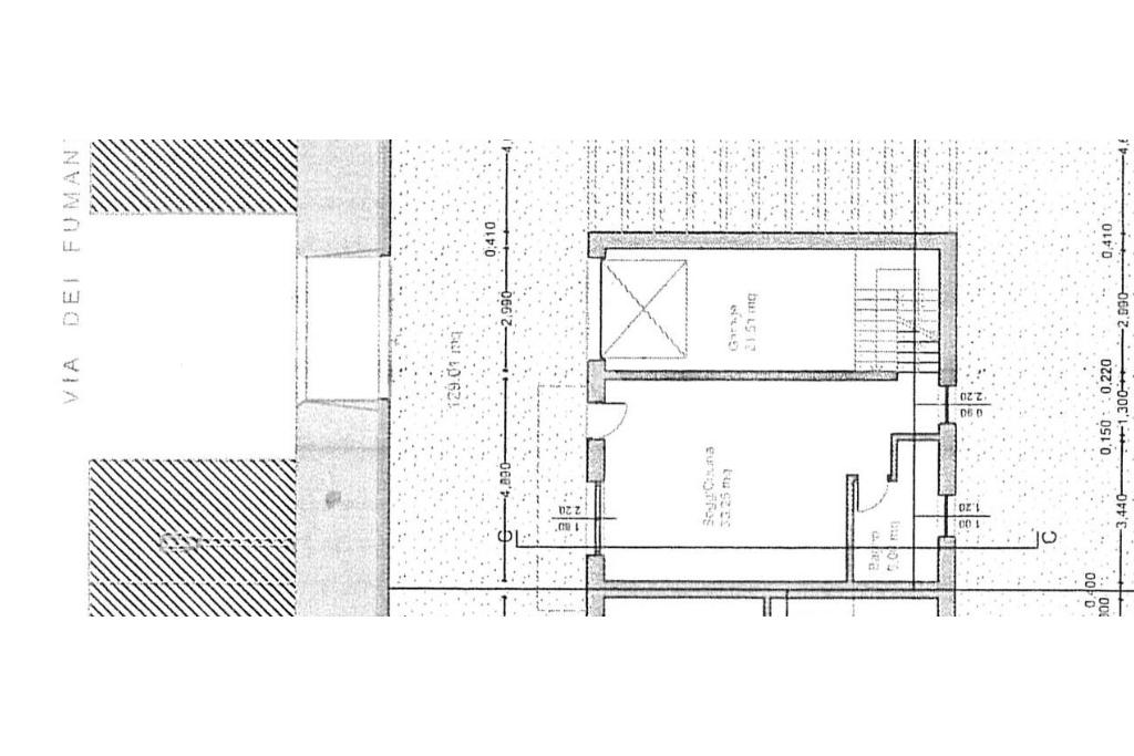
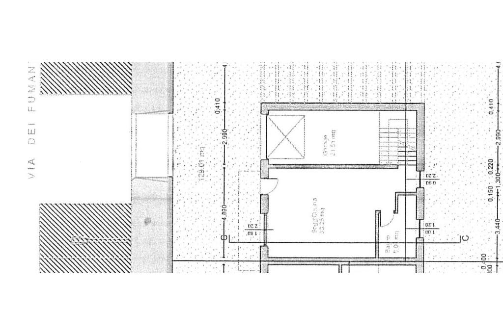
L'immobile disposto su due livelli, al piano terra ingresso su soggiorno con angolo cottura, di dimensioni generose e bagno finestrato. Con una comoda scala in muratura si accede al piano seconodo, una camera matrimoniale, due camere doppie, un bagno finestrato ed un terrazzo.

L'impianto di riscaldamento sarà realizzato con sistema radiante a pavimento a bassa temperatura, costituito dauna serpentina realizzata con tubazione continua in polietilene reticolato posati su un pannello isolante. Il generatore di calore sarà una pompa di calore, integrato con modulo idronico ad incasso da esterni, con accumulo di acqua termica da 220 litri. I serramenti esterni saranno in PVC bianco, ad alta a ribalta, dotati di doppio vetro, tapparelle in PVC motorizzate, impianto fotovoltaico 3,00KW.

Completano la proprietà, un'autorimessa collegata internamente all'abitazione e giardino privato di circa 120 mq.

Per ricevere maggiori informazioni o fissare un appuntamento contattare il numero 051.6601.042 oppure scrivere a bohb4

Mostra tutto

Nelle vicinanze

Trasporto pubblico Trasporto pubblico
Altedo Scuole
Altedo Scuole
140 m
Altedo Chiesa
Altedo Chiesa
350 m
Ricariche auto elettriche Ricariche auto elettriche
Altedo XXV Aprile | EnelX
530 m
EnelX EVAD COOP Altedo
1,2 Km
Farmacia Farmacia
Farmacia Comunale
530 m
Supermercati Supermercati
Tuodì
960 m
Coop Altedo
1,2 Km
Bar Bar
Bar
400 m
La Dolce Vita
550 m
Bar Sport
710 m
Ristoranti Ristoranti
La Giara
180 m
Ristoranti
2,0 Km
Mostra tutto

Caratteristiche

Rif.:
61140928
Piano:
Terra con giardino di 2
Totale piani:
2
Box:
1
Posti auto:
1
Terrazzi:
1
Mostra tutto
Prezzo Prezzo
€ 350.000
Rata mutuo Rata mutuo
€ 1.652 / mese
Spese annue Spese annue
€ 0
Proponi il tuo prezzoProponi il tuo prezzo

Classe Energetica

A4
A4
A4
A4
A4
A4
A4
A4
A4
EP invernale del fabbricato:
EP estiva del fabbricato:
Anno di costruzione:
2025
Riscaldamento:
Autonomo
Tipo impianto:
A pavimento
Tipo alimentazione:
Pannelli

Ti interessa visionare l'immobile?

Fissa un appuntamento  Fissa un appuntamento

Richiedi informazioni

Clicca su Leggi per aprire l'informativa
* Questi campi sono obbligatori

Calcola il tuo mutuo

Semplice e senza impegno
Anticipo

( % )
Mutuo

( % )

pochi semplici passi

inserisci i tuoi dati
Questionario completato
Grazie per aver richiesto un appuntamento senza impegno con un nostro Consulente del Credito e Assicurativo.

Hai inserito correttamente tutti i dati necessari e a breve riceverai una e-mail con un link da convalidare per inviare i tuoi dati.
Affiliato
Le Case Di Bologna Spa
Via Nazionale, 82/A 40051 Malalbergo (BO)

Il nostro staff


  • Nicolò Barbirati
    Affiliato

  • Andrea Gotti
    Affiliato

  • Roberta Tasca
    Coordinatrice
Via Nazionale, 82/A 40051 Malalbergo (BO)
Zona: Malalbergo-Altedo-Frazioni di Baricella-Pegola
Mostra su mappa
Orari: dal lunedì al venerdì dalle h. 09.00 alle h. 13.00 e dalle h. 15.00 alle h. 20.00. Il sabato su appuntamento.
Affiliato
Le Case Di Bologna Spa
Via Nazionale, 82/A 40051 Malalbergo (BO)

2025 Tecnocasa Franchising S.p.A. - P. IVA 08365160152 - Via Monte Bianco 60/A 20089 Rozzano (MI). Ogni agenzia ha un proprio titolare ed è autonoma. Privacy policy | Policy utilizzo | Cookie policy