Quadrilocale in vendita

Ozzano Dell'Emilia, Via Palazzo Bianchetti - Palazzo Bianchetti
€ 365.000
4 locali 4 locali
154 Mq 154 Mq
2 bagni 2 bagni

Quadrilocale in vendita

Ozzano Dell'Emilia, Via Palazzo Bianchetti - Palazzo Bianchetti

Descrizione annuncio

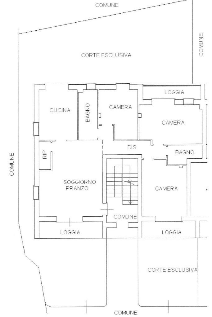
OZZANO DELL'EMILIA: Nel cuore delle colline di Ozzano, nella tranquilla località di Palazzo Bianchetti, si trova un immobile di 154 mq, ideale per chi cerca comfort e funzionalità.

Situato al piano terra, l'appartamento offre un ingresso indipendente che conduce a un ampio soggiorno di 30 mq, perfetto per momenti di relax e convivialità. La cucina abitabile è spaziosa e ben organizzata, mentre la zona notte comprende tre camere da letto, garantendo spazio e privacy. I doppi servizi aggiungono praticità alla vita quotidiana.

Il giardino privato, dotato di illuminazione, barbecue e sistema di irrigazione, rappresenta un'oasi di tranquillità per godere delle belle giornate all'aperto.

Il riscaldamento a pavimento assicura un comfort termico ottimale in ogni stagione.

Completano la proprietà una cantina (11 mq)e un autorimessa doppia (32 Mq. ), offrendo ulteriore spazio per le esigenze di stoccaggio e parcheggio.

Costruito nel 2008, l'immobile si presenta in ottime condizioni.

Nelle immediate vicinanze fermata autobus per Bologna.

POSSIBILITA' DI FRAZIONAMENTO CON DOPPIO ACCESSO PER CREARE DUE UNITA' ABITATIVE.

Per ricevere informazioni o fissare un appuntamento contattare il cell. 334.34.73.884 o 051660.10.42 oppure scrivere a bohb4

Mostra tutto

Nelle vicinanze

Trasporto pubblico Trasporto pubblico
stazione di Ozzano dell'Emilia
stazione di Ozzano dell'Emilia
2,3 Km
Veterinaria
Veterinaria
680 m
Ozzano Nardi
Ozzano Nardi
950 m
Scuole Scuole
Università di Bologna - Dipartimento di Scienze Mediche Veterinarie
590 m
Scuola Elementare Bruno Ciari
1,6 Km
Scuola Media Enrico Panzacchi
1,7 Km
Scuola dell'infanzia Don Milani
1,7 Km
Scuole Elementari Marco Minghetti
1,8 Km
Farmacia Farmacia
Ghigi
1,8 Km
Ospedali Ospedali
Distretto Socio Sanitario
1,7 Km
Supermercati Supermercati
EuroSpin
1,1 Km
Coop
1,2 Km
Coop Ozzano dell'Emilia
1,2 Km
Centro Commerciale Osteria Grande
2,8 Km
Negozi Negozi
Esso
1,3 Km
Bar Bar
Bar Centrale
1,7 Km
Bar Dalla Valle Augusto
2,7 Km
Ristoranti Ristoranti
Pizzeria dei Sogni
1,2 Km
Il Doge d'Amalfi
1,2 Km
Europizza
1,3 Km
Osteria San Pietro
1,5 Km
Ristorante La Primula
1,6 Km
Mostra tutto

Caratteristiche

Rif.:
61123518
Piano:
Terra con giardino
Box:
2
Posti auto:
1
Camere da letto:
3
Condizionamento:
Centralizzato
Mostra tutto
Prezzo Prezzo
€ 365.000
Rata mutuo Rata mutuo
€ 1.723 / mese
Spese annue Spese annue
€ 2.100
Proponi il tuo prezzoProponi il tuo prezzo

Classe Energetica

A4
A4
A4
A4
A4
A4
A4
A4
A4
EP globale non rinnovabile:
32.03 kW h/m² anno
EP globale rinnovabile:
78.74 kW h/m² anno
EP invernale del fabbricato:
EP estiva del fabbricato:
Anno di costruzione:
2008
Riscaldamento:
Centralizzato
Tipo impianto:
A pavimento
Tipo alimentazione:
Pannelli

Ti interessa visionare l'immobile?

Fissa un appuntamento  Fissa un appuntamento

Richiedi informazioni

Clicca su Leggi per aprire l'informativa
* Questi campi sono obbligatori

Calcola il tuo mutuo

Semplice e senza impegno
Anticipo

( % )
Mutuo

( % )

pochi semplici passi

inserisci i tuoi dati
Questionario completato
Grazie per aver richiesto un appuntamento senza impegno con un nostro Consulente del Credito e Assicurativo.

Hai inserito correttamente tutti i dati necessari e a breve riceverai una e-mail con un link da convalidare per inviare i tuoi dati.
Affiliato
Le Case Di Bologna Spa
Via Nazionale, 82/A 40051 Malalbergo (BO)

Il nostro staff


  • Nicolò Barbirati
    Affiliato

  • Andrea Gotti
    Affiliato

  • Roberta Tasca
    Coordinatrice
Via Nazionale, 82/A 40051 Malalbergo (BO)
Zona: Malalbergo-Altedo-Frazioni di Baricella-Pegola
Mostra su mappa
Orari: dal lunedì al venerdì dalle h. 09.00 alle h. 13.00 e dalle h. 15.00 alle h. 20.00. Il sabato su appuntamento.
Affiliato
Le Case Di Bologna Spa
Via Nazionale, 82/A 40051 Malalbergo (BO)

2025 Tecnocasa Franchising S.p.A. - P. IVA 08365160152 - Via Monte Bianco 60/A 20089 Rozzano (MI). Ogni agenzia ha un proprio titolare ed è autonoma. Privacy policy | Policy utilizzo | Cookie policy